Omschrijving

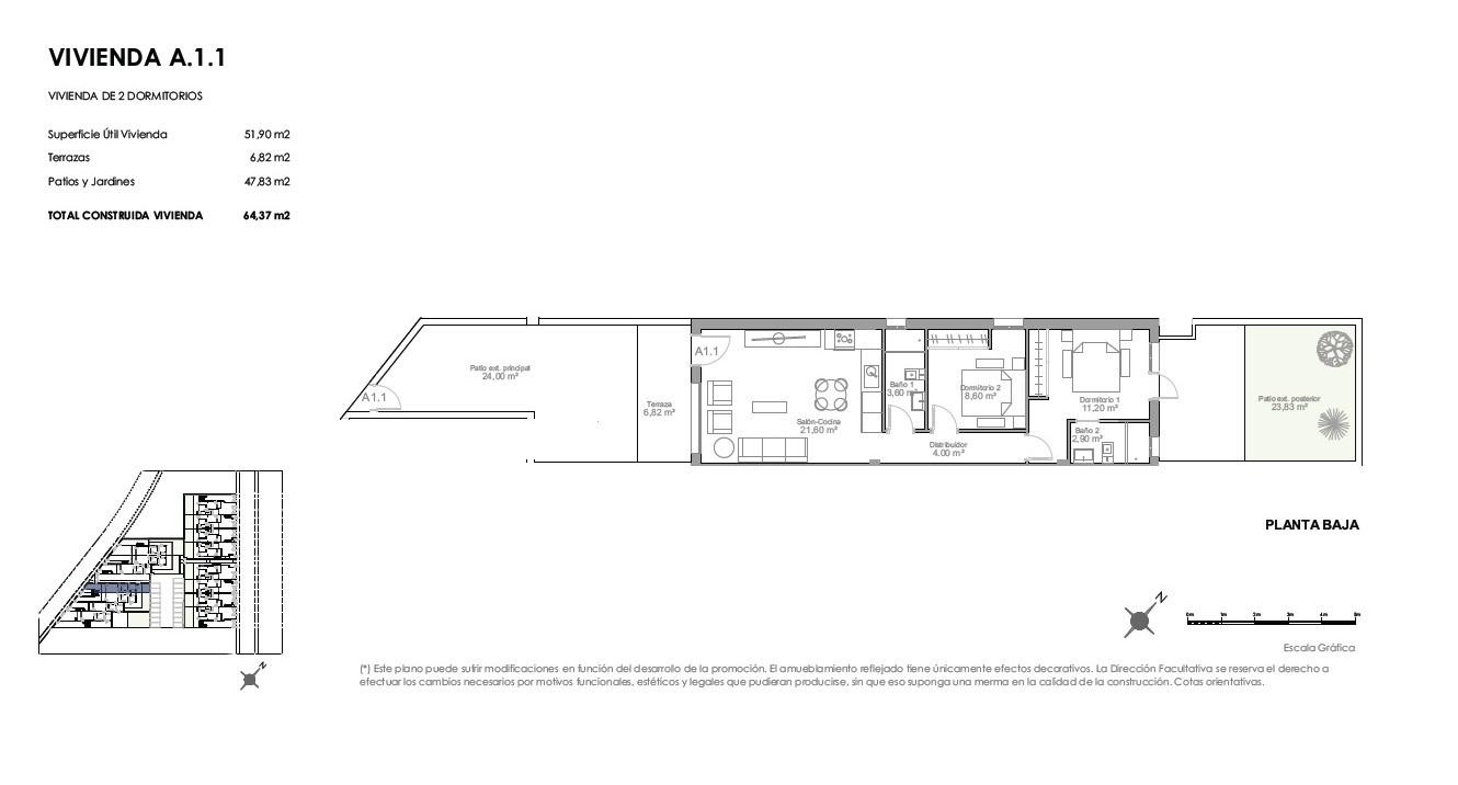
Maisons neuves à seulement 200 mètres de la plage à Puerto de Mazarrón Une vie exclusive sur la côte de la Costa Cálida Découvrez un nouveau complexe résidentiel de maisons modernes à Puerto de Mazarrón, situé à seulement 200 mètres de la magnifique Playa Negra. Situé dans l’une des zones côtières les plus prisées de la région de Murcie, ce projet offre une occasion exceptionnelle de profiter de la vie méditerranéenne à proximité de la mer, des commodités essentielles et d’un environnement naturel. Puerto de Mazarrón est connu pour ses plages magnifiques, ses eaux cristallines, son charmant port de plaisance et son atmosphère détendue. Avec d’excellents services, des possibilités de loisirs en plein air et un climat chaud toute l’année, c’est une destination idéale pour vivre à l’année ou passer des vacances. Design moderne et agencements fonctionnels Ce projet exclusif se compose de 30 maisons contemporaines comprenant 2 chambres et 1 ou 2 salles de bains, conçues avec soin pour offrir confort, style et efficacité. Le complexe de faible hauteur comprend des logements au rez-de-chaussée avec terrasses et jardins privés, ainsi que des logements au premier étage avec terrasses et solariums privés sur le toit. Les maisons disposent de places de parking privées soit sur la propriété, soit au sein de la résidence. Les maisons sont orientées de manière à maximiser la lumière naturelle, avec des espaces de vie ouverts, de grandes fenêtres et des finitions haut de gamme. La première phase propose des maisons personnalisables avec des agencements fonctionnels qui peuvent être adaptés à votre style de vie. Les logements du rez-de-chaussée comprennent un jardin privé, un patio arrière et un parking sur la parcelle ou un parking communautaire. Les logements du dernier étage offrent un accès privé au rez-de-chaussée, une terrasse au premier étage et un solarium sur le toit, ainsi qu’un parking attribué. Les options supplémentaires comprennent des piscines privées sur les terrasses du rez-de-chaussée ou des jacuzzis sur les solariums. Spécifications de haute qualité Chaque propriété comprend Porte d’entrée renforcée Pré-installation pour la climatisation canalisée Salles de bains complètes avec meubles, miroir et parois de douche Espaces extérieurs conçus pour les barbecues, les pergolas et les zones de détente Cette communauté résidentielle offre un environnement sûr, familial et établi, à quelques pas des supermarchés, des écoles, des services médicaux, des parcs et de la plage. Emplacement privilégié à Puerto de Mazarrón Distances vers les principaux points d’intérêt Playa Negra 0,2 km Port de plaisance de Mazarrón 2 km Centre commercial Mazarrón Park 5 km Cartagena 35 km Ville de Murcie 70 km Aéroport de Murcie Corvera 45 km Parcours de golf Camposol et Hacienda del Álamo 25-35 km Profitez des sports nautiques, de la randonnée et du vélo dans la Sierra de las Moreras toute proche, et découvrez le meilleur du style de vie de la Costa Cálida. Faites de la Méditerranée votre chez-vous Ne manquez pas l’occasion d’acquérir une propriété neuve à quelques pas de la plage à Puerto de Mazarrón. Contactez-nous dès aujourd’hui pour connaître les disponibilités, obtenir des détails et prendre rendez-vous pour une visite.

Details

Eigendom ID
P3460
Slaapkamers
2
Badkamers
2
Eigendom afmetingen
64 m²
Bouwjaar
2025
Mis à jour le décembre 2, 2025 à 10:26 am

Eigenschappen

Adres

  • Stad Playa Negra
  • Provincie Región de Murcia
  • Land Spanje

Contactformulier

Luc
  • Luc
  • +32 473958745 +34 687026690
Kijk naar de Listing

Informeer naar deze eigendom

Compare listings

Comparer
Luc
  • Luc