Omschrijving

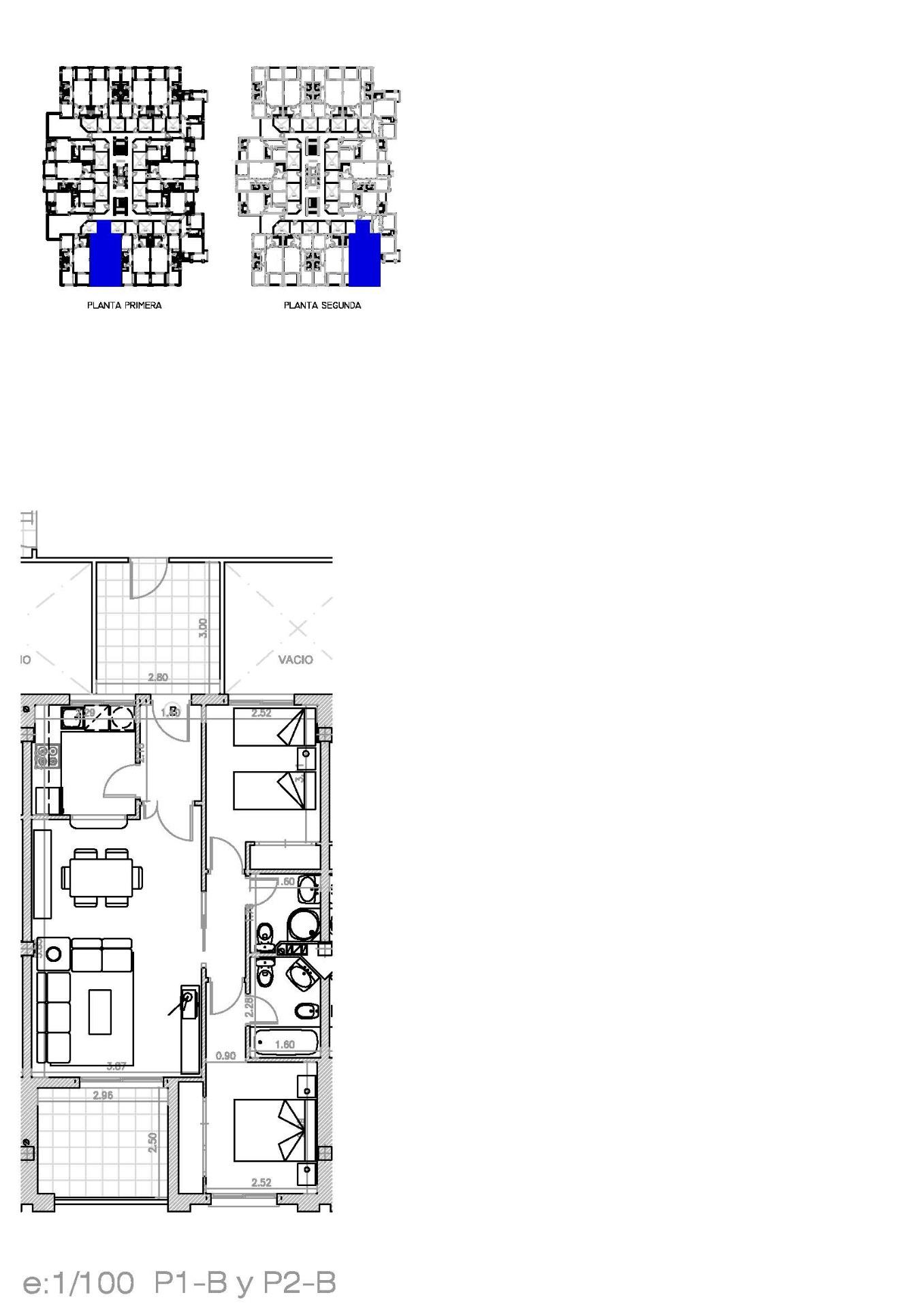
Gerenoveerd wooncomplex in Lomas de Cabo Roig – Gerenoveerde appartementen Appartementen op een toplocatie Ontdek deze exclusieve kans om een gerenoveerd appartement te bezitten in Lomas de Cabo Roig, een gewilde wijk in Orihuela Costa. Dit wooncomplex, oorspronkelijk gebouwd in 2008, ondergaat een renovatie van enkele eenheden en zal in juni 2025 worden opgeleverd. Er is een modelwoning beschikbaar voor bezichtiging, zodat je de kwaliteitsafwerking met eigen ogen kunt zien. Vastgoedopties voor elke behoefte Dit project biedt 27 gerenoveerde appartementen met verschillende indelingen: 1 en 2-slaapkamerappartementen, ideaal als vakantiewoning of investering. Appartementen op de begane grond met privétuinen, perfect voor het buitenleven. Appartementen op de middelste verdieping met ruime terrassen, ideaal om te genieten van het mediterrane klimaat. Penthouses met privé solariums, met open uitzicht en maximale privacy. Elke woning wordt opgeleverd met doucheschermen in de badkamers en volledig uitgeruste keukens met inbouwapparatuur, zodat kopers verzekerd zijn van een kant-en-klare oplossing. Exclusieve gemeenschapsvoorzieningen Het wooncomplex is ontworpen voor comfort en ontspanning, met: Een gemeenschappelijk zwembad omgeven door prachtig aangelegde tuinen. Een lift voor gemakkelijke toegang tot alle verdiepingen. Optionele ondergrondse parkeerplaatsen beschikbaar tegen een meerprijs. Een onovertroffen locatie in Orihuela Costa Lomas de Cabo Roig is een prestigieuze woonwijk op slechts 2 km van de kustlijn van Cabo Roig, waar zich enkele van de mooiste stranden van Orihuela Costa bevinden. Het gebied is goed verbonden via de weg en biedt een breed scala aan diensten, waaronder winkels, restaurants, supermarkten en winkelcentra. Afstanden naar de belangrijkste bezienswaardigheden: Stranden van Cabo Roig en Campoamor – 5 minuten rijden. Winkelcentrum Zenia Boulevard – 5 km. Golfbaan Villamartín – 4 km. Vliegveld Alicante – 30 minuten met de auto. Luchthaven Murcia-Corvera – 1 uur rijden. Een slimme investering aan de Costa Blanca Met zijn uitstekende locatie, volledig gerenoveerde appartementen en eersteklas voorzieningen is dit project een ideale gelegenheid voor investering, vakantie of permanente bewoning. Mis deze unieke kans niet om een huis te bezitten in een van de meest gewilde gebieden van de Costa Blanca voor een onverslaanbare prijs. Neem vandaag nog contact met ons op voor meer informatie of om een bezichtiging te plannen! 365

Details

Eigendom ID
N8679
Slaapkamers
2
Badkamers
2
Eigendom afmetingen
69 m²
Bouwjaar
2025
Bijgewerkt op februari 19, 2026 op 7:50 am

Adres

  • Stad Lomas de Cabo Roig
  • Provincie Comunitat Valenciana
  • Land Spanje

Contactformulier

Luc
  • Luc
  • +32 473958745 +34 687026690
Kijk naar de Listing

Informeer naar deze eigendom

Compare listings

Vergelijken
Luc
  • Luc