Omschrijving

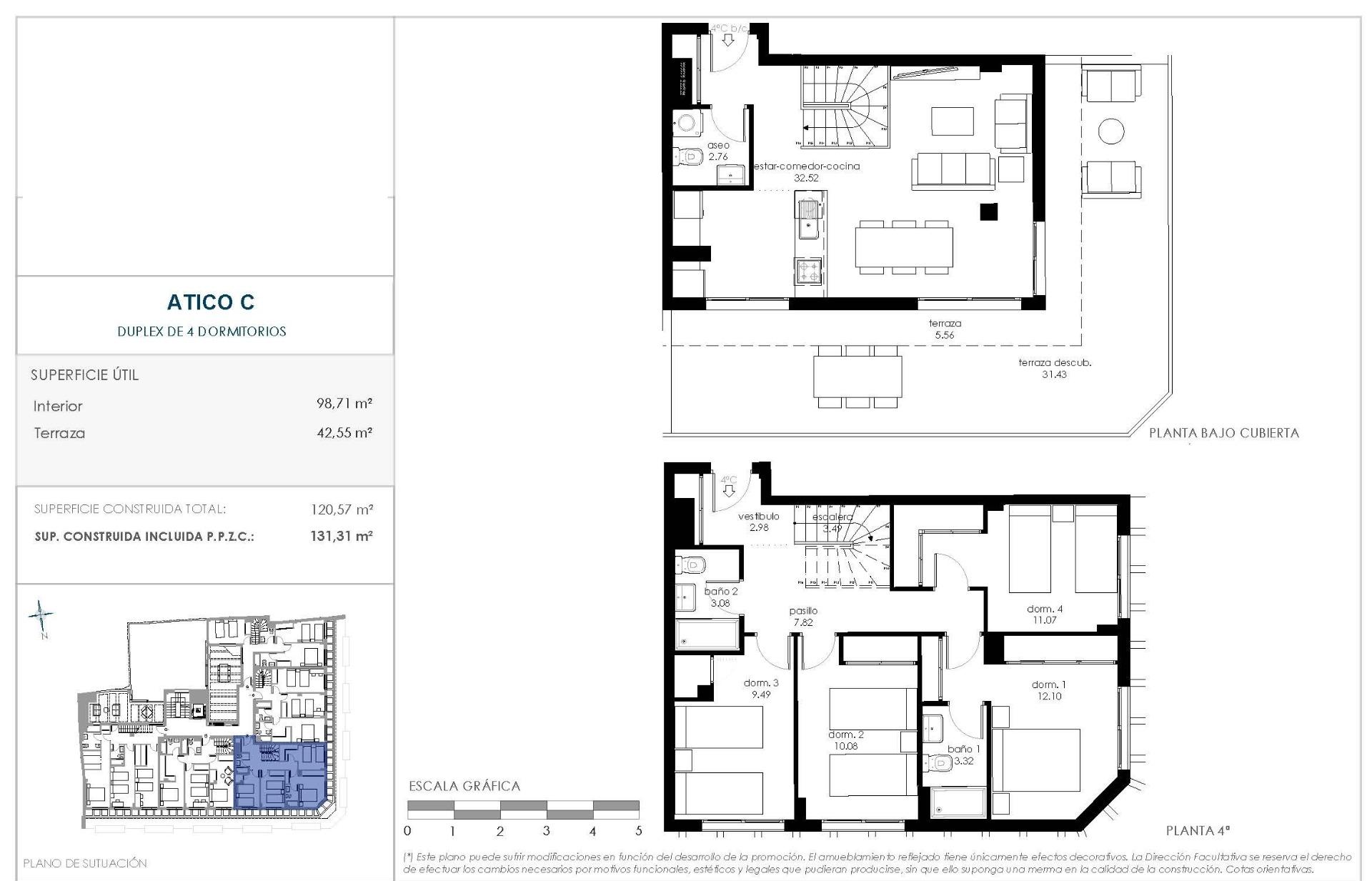
Nieuwbouw duplex penthouses in het centrum van Murcia, vlakbij Plaza Mayor Exclusief wonen in het hart van Murcia Ontdek deze ruime nieuwbouw duplex penthouses in het centrum van Murcia, op slechts een steenworp afstand van Plaza Mayor de Murcia. Gelegen tussen het historische hart van de stad en het commerciële gebied nabij El Corte Ingles, biedt dit project een unieke kans om te genieten van modern comfort op een van de meest gewilde locaties in de regio Murcia. Murcia staat bekend om zijn bruisende stadsleven, indrukwekkende barokke architectuur, gerenommeerde gastronomie en aangenaam klimaat het hele jaar door. Wonen in het centrum van de stad betekent dat restaurants, boetieks, culturele instellingen, scholen en alle essentiële voorzieningen op loopafstand liggen. Ruime duplex penthouses met 3 en 4 slaapkamers en grote terrassen Deze exclusieve penthouses hebben 3 of 4 slaapkamers verdeeld over twee verdiepingen, waardoor ze royale en functionele leefruimtes bieden die ideaal zijn voor gezinnen of mensen die extra ruimte zoeken om thuis te werken. Een van de opvallende kenmerken zijn de ruime privéterrassen van meer dan 40 m2, die een vrij uitzicht en veel natuurlijk licht bieden. Deze buitenruimtes zijn perfect om te ontspannen, gasten te ontvangen of te genieten van een diner in de open lucht in het centrum van de stad. Het gebouw is voorzien van een lift en is volledig toegankelijk voor mensen met beperkte mobiliteit. Tegen meerprijs zijn optionele parkeerplaatsen en opslagruimtes beschikbaar, wat extra gemak biedt in deze uitstekende stedelijke omgeving. Hoogwaardige afwerking en energie-efficiëntie Elk penthouse is ontworpen om maximaal comfort en efficiëntie te bieden. De volledig uitgeruste keuken met ingebouwde apparatuur creëert een perfecte ruimte voor kookliefhebbers. Belangrijkste kenmerken zijn: Energie-efficiëntieklasse A Volledig geïnstalleerde airconditioning met luchtkanalen Vloerverwarming Domotica-pakket Video-intercomsysteem LED-verlichting in woonkamer, badkamers en slaapkamers Deze hoogwaardige specificaties zorgen voor een laag energieverbruik, minder uitstoot en optimaal thermisch comfort het hele jaar door. Toplocatie en afstanden Kathedraal van Murcia 0,5 km Plaza Mayor de Murcia 0,3 km Treinstation van Murcia 1,5 km Altorreal Golf 15 km Internationale luchthaven van Murcia 25 km Middellandse Zeestranden 50 km Verzeker uzelf van uw luxe penthouse in Murcia Deze nieuw gebouwde duplex penthouses combineren ruimte, energie-efficiëntie en een onovertroffen centrale ligging in Murcia. Neem vandaag nog contact met ons op voor meer informatie of om een privébezichtiging te regelen en uw nieuwe woning in het hart van de stad te verzekeren. 365

Details

Eigendom ID
P3805
Slaapkamers
4
Badkamers
2
Eigendom afmetingen
130 m²
Bouwjaar
2025
Bijgewerkt op maart 6, 2026 op 6:22 am

Adres

  • Stad Centro
  • Provincie Región de Murcia
  • Land Spanje

Contactformulier

Luc
  • Luc
  • +32 473958745 +34 687026690
Kijk naar de Listing

Informeer naar deze eigendom

Compare listings

Vergelijken
Luc
  • Luc