Omschrijving

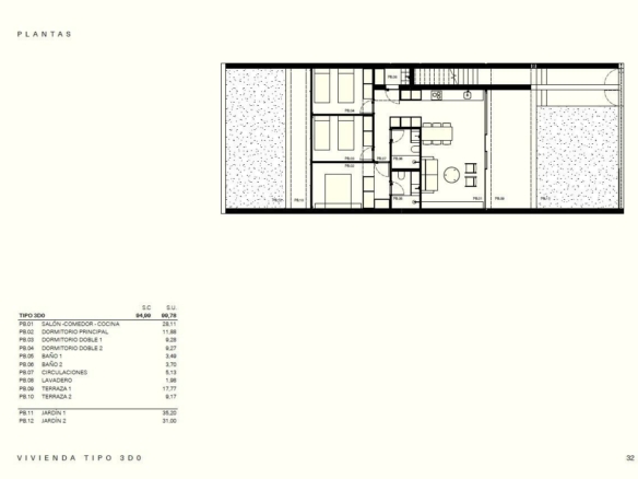
Nieuwbouwappartementen in Los Balcones, Torrevieja Moderne woningen in een uitstekende woonwijk Ontdek dit aantrekkelijke nieuwbouwcomplex in Los Balcones, een van de populairste en meest gevestigde wijken aan de rand van Torrevieja. Dit complex ligt in een rustige omgeving met uitstekende toegang tot alle essentiële voorzieningen, op slechts 4 km van de zandstranden van de Costa Blanca. Los Balcones staat bekend om zijn ontspannen sfeer, brede straten, groene zones en de nabijheid van ziekenhuizen, supermarkten, restaurants en winkelcentra, waardoor het ideaal is om er het hele jaar door te wonen of om er uw vakantie door te brengen. Eigentijdse appartementen met privé buitenruimtes Het complex bestaat uit 52 moderne appartementen gebouwd op een totale oppervlakte van 6700 m2. Elke woning beschikt over een privé parkeerplaats en een berging in de kelder. De woningen hebben 2 of 3 slaapkamers en 2 badkamers, waarvan één en suite. Kopers kunnen kiezen tussen appartementen op de begane grond met een privétuin of woningen op de bovenverdieping met een ruim terras en een privésolarium. Deze indelingen zijn ontworpen om het natuurlijke licht te maximaliseren en comfortabele binnen- en buitenruimtes te bieden om het hele jaar door van het mediterrane klimaat te genieten. Gemeenschappelijke ruimtes ontworpen voor ontspanning Het project is ingedeeld in vier blokken rondom een grote centrale gemeenschappelijke ruimte. Dit groene hart van het project beschikt over een zwembad met een speciaal kindergedeelte en prachtig aangelegde tuinen. Deze gemeenschappelijke ruimtes zijn perfect om te ontspannen, te socializen en tijd door te brengen met het gezin in een veilige en vriendelijke omgeving. Kwaliteitskenmerken en energiezuinig ontwerp Elk appartement is gebouwd volgens moderne normen en is voorzien van voorinstallatie voor airconditioning, een aerothermisch warmwatersysteem voor verbeterde energie-efficiëntie, buitenverlichting en dubbele beglazing. De keukens zijn volledig ingericht en bieden een functionele en stijlvolle ruimte voor het dagelijks leven. Deze kenmerken zorgen voor een hoog comfortniveau, weinig onderhoud en een laag energieverbruik, waardoor de woningen zowel praktisch als duurzaam zijn. Uitstekende locatie nabij stranden en golfbanen Los Balcones biedt een strategische locatie dicht bij vele bezienswaardigheden. De stranden van Torrevieja liggen op ongeveer 4 km afstand. Verschillende gerenommeerde golfbanen, zoals Villamartin Golf, Las Ramblas Golf en Campoamor Golf, liggen binnen 10 tot 15 km. Het Universitair Ziekenhuis van Torrevieja ligt op minder dan 2 km afstand, wat extra gemak en gemoedsrust biedt. Het centrum van Torrevieja ligt op ongeveer 5 km afstand en is met de bus verbonden met Los Balcones, waar u een breed scala aan winkels, restaurants, culturele bezienswaardigheden en een levendige jachthaven vindt. De internationale luchthaven van Alicante ligt op ongeveer 42 km afstand en biedt gemakkelijke internationale verbindingen. De haven van Torrevieja ligt op ongeveer 6 km afstand. Ideaal om te wonen of als investering Met zijn moderne ontwerp, uitstekende gemeenschappelijke ruimtes en toplocatie in de buurt van stranden, golfbanen en voorzieningen is dit nieuwe wooncomplex in Los Balcones Torrevieja perfect als permanente woning, vakantiehuis of investeringsmogelijkheid. Neem vandaag nog contact met ons op voor meer informatie of om een bezichtiging te regelen van deze nieuwbouwwoningen in Los Balcones, Torrevieja.

Details

Eigendom ID
P3592
Slaapkamers
3
Badkamers
2
Eigendom afmetingen
99 m²
Bouwjaar
2026
Bijgewerkt op januari 21, 2026 op 7:05 am

Eigenschappen

Adres

  • Stad Los Balcones
  • Provincie Comunitat Valenciana
  • Land Spanje

Contactformulier

Luc
  • Luc
  • +32 473958745 +34 687026690
Kijk naar de Listing

Informeer naar deze eigendom

Compare listings

Vergelijken
Luc
  • Luc