Omschrijving

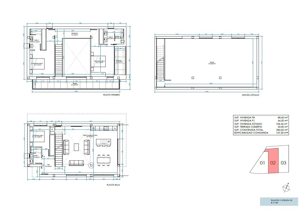
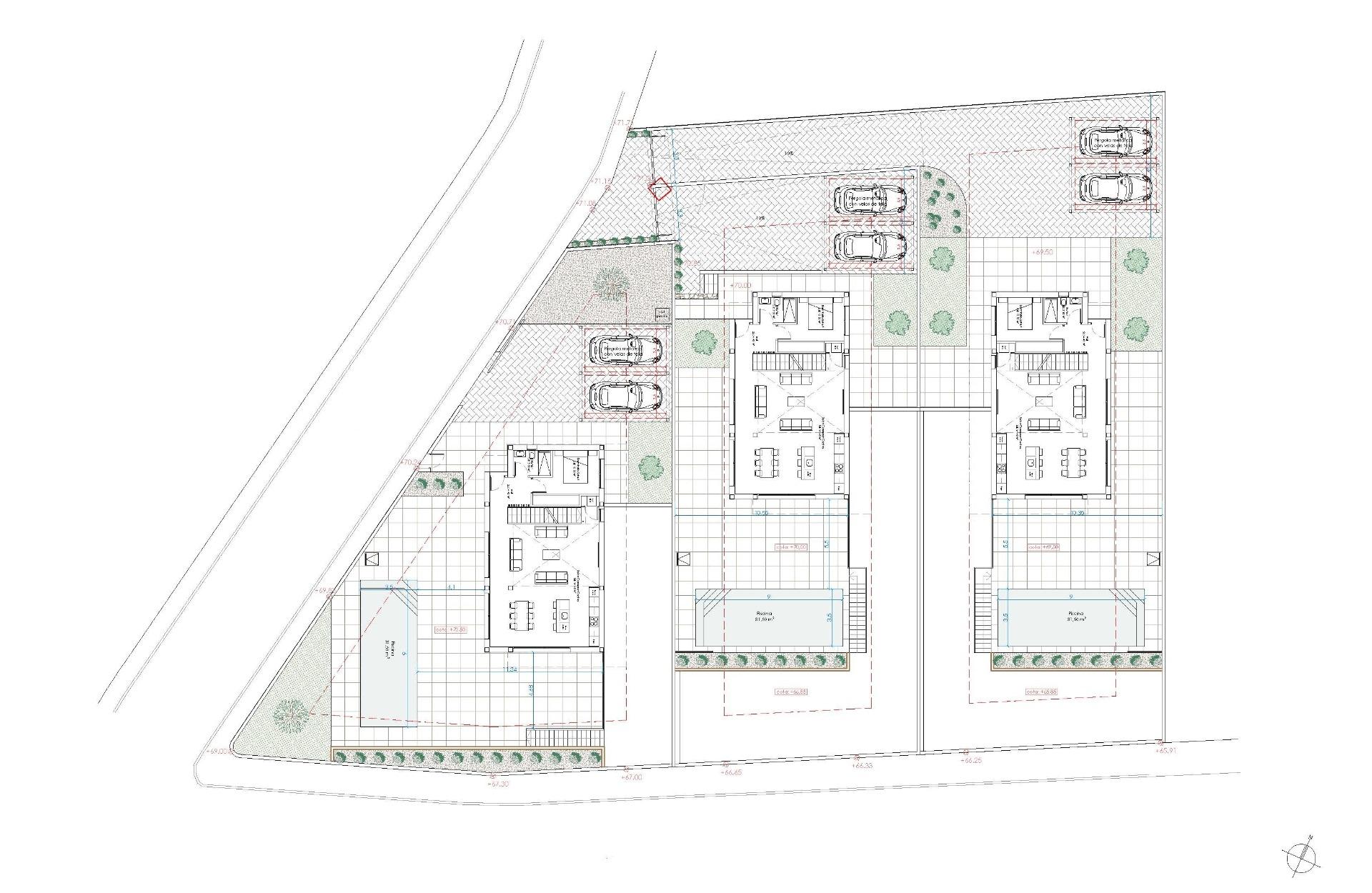
Nieuwbouwwoning in Rojales – Modern ontwerp en toplocatie Ontdek deze prachtige nieuwbouwwoning in Ciudad Quesada, Rojales, ontworpen met een perfecte balans tussen stijl, comfort en functionaliteit. Omgeven door natuur en dicht bij alle essentiële voorzieningen is deze woning een ideale keuze voor wie op zoek is naar kwaliteitsvol wonen in het hart van de Costa Blanca. Ruime indeling met hoogwaardige voorzieningen Deze villa is zorgvuldig ontworpen om zoveel mogelijk natuurlijk licht en open ruimtes te creëren. De villa beschikt over: Een grote kelder met uitstekende ventilatie en veel natuurlijk licht, ideaal voor verschillende doeleinden. Begane grond met een woonkamer met dubbel hoog plafond, open keuken met kookeiland, een slaapkamer en een badkamer. Bovenverdieping met twee slaapkamers met eigen badkamer, elk met toegang tot een privéterras. De villa biedt ook een privézwembad van 9×3,5 m, aangelegde tuinen en meerdere terrassen om buiten te ontspannen. Hoogwaardige afwerking en modern comfort Deze woning is gebouwd met hoogwaardige materialen en is voorzien van: Volledig ingerichte badkamers met spiegels Airconditioning Vloerverwarming in de badkamers Aerothermisch warmwatersysteem Parkeerplaats voor meerdere voertuigen Toplocatie in Rojales Deze villa ligt in het charmante stadje Rojales, dicht bij alle voorzieningen zoals supermarkten, apotheken, banken, restaurants en natuurparken. Op slechts 10 minuten van La Marquesa Golf, een van de meest prestigieuze golfbanen aan de Costa Blanca, kunnen bewoners genieten van een topgolfervaring omringd door traditie en kwaliteit. Uitstekende verbindingen en bezienswaardigheden in de buurt Rojales is strategisch gelegen en biedt uitstekende wegverbindingen: La Marquesa Golf – 3 km Stranden van Guardamar del Segura – 8 km Torrevieja – 12 km Luchthaven Alicante – 40 km Luchthaven Murcia – 55 km Bovendien zorgen de snelwegen N-332 en AP-7 voor een snelle verbinding met nabijgelegen steden, winkelcentra, jachthavens en culturele bezienswaardigheden. Maak van Rojales uw nieuwe thuis Of u nu op zoek bent naar een permanente woning, een vakantiehuis of een veilige investering, deze nieuwbouwwoning in Ciudad Quesada biedt alles wat u nodig heeft voor een mediterrane levensstijl. Neem vandaag nog contact met ons op voor meer informatie en om een privébezichtiging te plannen. 365

Details

Eigendom ID
P3409
Slaapkamers
3
Badkamers
3
Eigendom afmetingen
284 m²
Bouwjaar
2025
Bijgewerkt op mei 8, 2026 op 5:52 pm

Eigenschappen

Adres

  • Stad Ciudad Quesada
  • Provincie Comunitat Valenciana
  • Land Spanje

Contactformulier

Luc
  • Luc
  • +32 473958745 +34 687026690
Kijk naar de Listing

Informeer naar deze eigendom

Compare listings

Vergelijken
Luc
  • Luc