Omschrijving

NIEUWBOUWWONINGEN IN TORREGUIL, MURCIA

Nieuwbouw herenhuizen en halfvrijstaande villa’s gelegen in de urbanisatie Torreguil, op 20 minuten afstand van de stad Murcia en de luchthaven van Corvera.

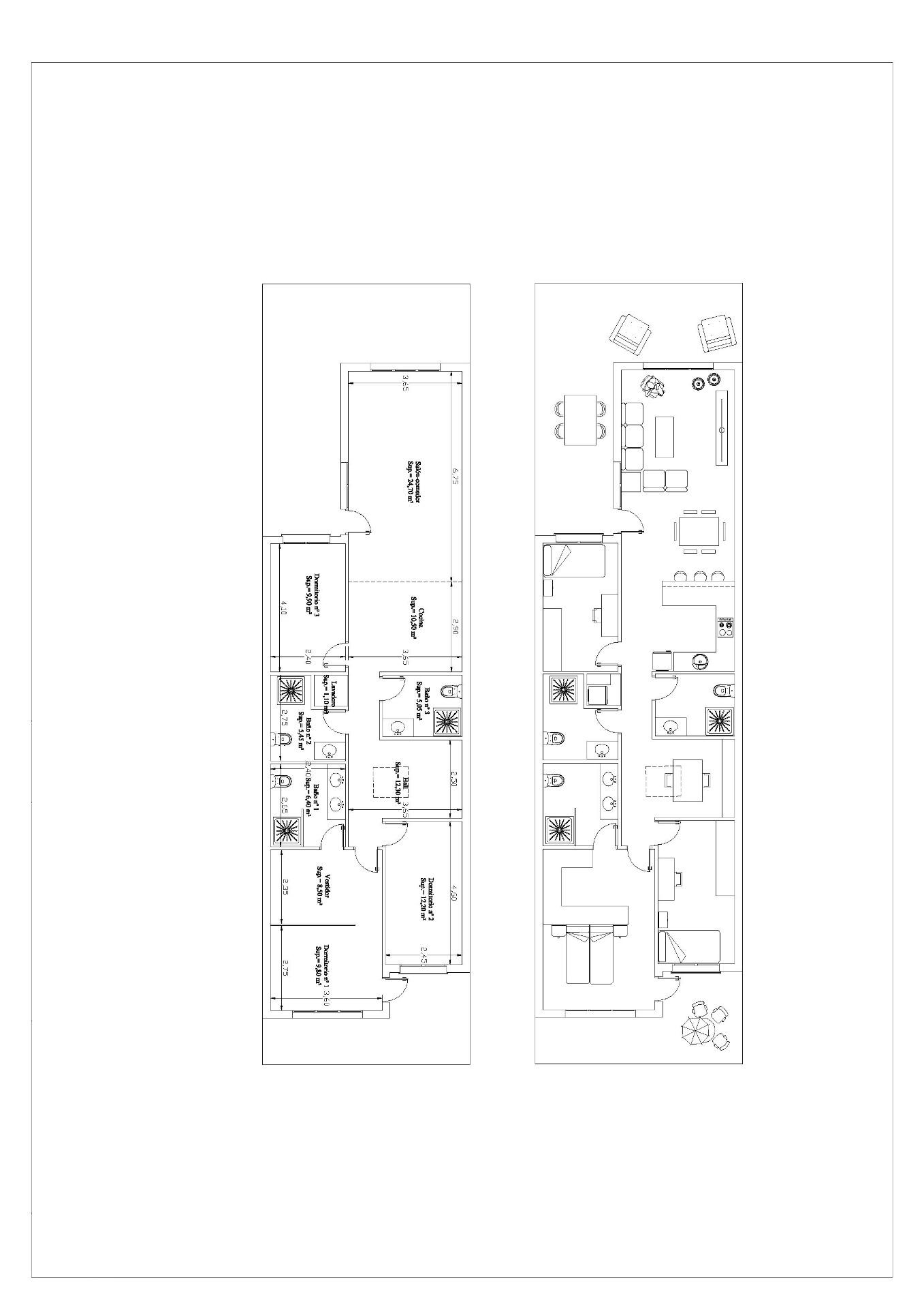
Moderne woningen gebouwd op 1 verdieping, heeft 3 slaapkamers, 2 badkamers, open keuken met de woonkamer, tuin met het zwembad en parkeerplaats.

Woningen gelegen in een natuurlijke omgeving, omringd door pijnbomen en in een gesloten urbanisatie met 24-uurs beveiliging.

Sangonera la Verde is een dorp in de Tuin van Murcia (Spanje) en ligt in het zuidwesten van de gemeente Murcia.

Details

Eigendom ID
N8124
Slaapkamers
3
Badkamers
3
Eigendom afmetingen
120 m²
Bijgewerkt op april 10, 2025 op 6:58 am

Adres

  • Provincie Comunitat Valenciana
  • Land Spanje

Contactformulier

Luc
  • Luc
  • +32 473958745 +34 687026690
Kijk naar de Listing

Informeer naar deze eigendom

Compare listings

Vergelijken
Luc
  • Luc