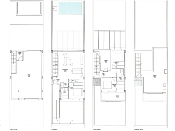
Solarium

554 Properties
Sorteer op:

Compare listings

Vergelijken